top of page

Triple Threat: The Norwood Park Laneway Suites Redefine Collaborative Urban Living

  • Mar 24
  • 4 min read

In collaboration with: Lanescape


When a property owner purchased two side-by-side semi-detached, multi-unit homes on Gerrard East, the goal was simple: build two park-side laneway suites as premium rental properties. But what started as a standard property investment quickly evolved into a masterclass in neighbourhood collaboration.


Modern townhouses with brick and black facades, large windows emitting warm light. Set along a driveway with grass, against a clear sky.
Image courtesy of: Lanescape

After reaching out to the adjacent neighbour, who was also looking to maximize their lot's potential, a unique partnership was formed. Two clients, three properties, and one unified vision culminated in the Norwood Park Laneway Suites—a stunning tri-suite development designed by the architectural team at Lanescape.


The project perfectly illustrates how multiple homeowners can pool their ambitions to seamlessly integrate new, high-quality housing into an existing neighbourhood, creating a striking, uniform design across three separate properties.


A Masterpiece of Modern Exterior Contrast

From the laneway, the three suites present a rhythmic, unified facade that punches far above the typical backyard build. The exterior architecture relies on a masterclass in textural and tonal contrast.


Traditional, warm red brick grounds the structures, nodding to Toronto's historic residential vernacular. Above, sleek, standing-seam black metal cladding wraps the upper levels in a bold, contemporary shell. To soften the industrial edge, pronounced vertical wood-slat detailing defines the entryways. At dusk, integrated exterior lighting casts a warm glow against the wood, creating an inviting, natural curb appeal that draws you inside. Large, black-framed windows punctuate the facade, offering tantalizing glimpses of the bright interiors while reflecting the surrounding neighbourhood canopy.



The "Reverse Layout" Advantage

Designed to maximize their prime location overlooking Norwood Park, the suites employ a brilliant "reverse layout" to prioritize natural light and views for the active living spaces.


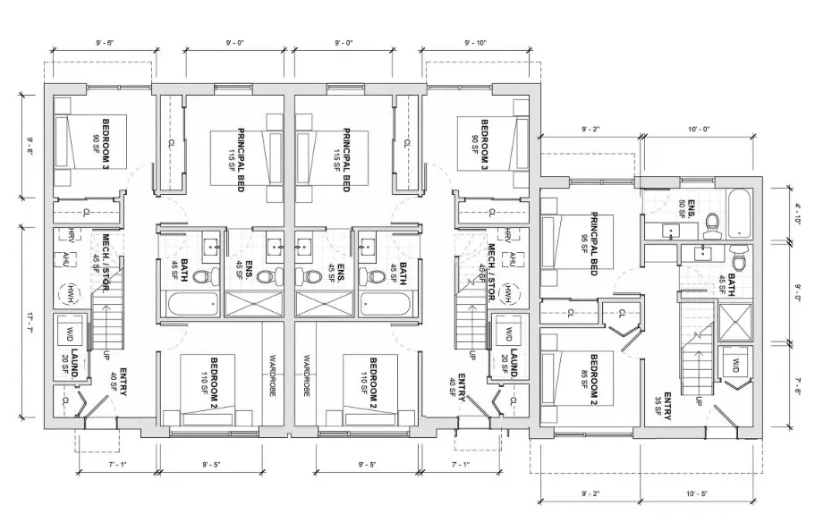
  • The Ground Floor Sanctuary: Intentionally designed for privacy and rest, the ground floor houses the bedrooms and full bathrooms, all nested efficiently around a central corridor. Essential but utilitarian elements—like laundry, mechanical systems, and storage—are cleverly tucked beneath and around the staircases to maximize livable square footage. Light oak flooring runs throughout, keeping the lower level bright and airy.


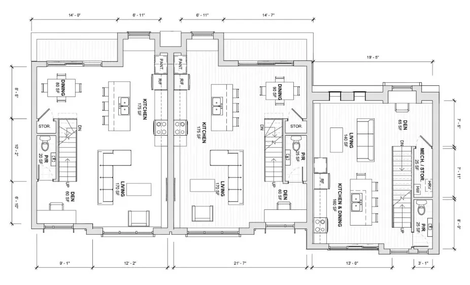
  • The Upper Floor Oasis: Ascending to the second level reveals a sprawling, open-concept hub. By placing the kitchen, dining, and living spaces on the top floor, the design captures abundant natural light and sweeping park views. Massive black-framed sliding glass doors open up to private balconies, seamlessly blurring the line between indoor and outdoor living.


Curated Interiors: Scandinavian Serenity Meets Bold Accents

The interior finishes mirror the exterior’s modern elegance, acting as a blank canvas with strategic pops of personality.


  • The Chef's Kitchen: The heart of the upper floor features a massive, white quartz-topped peninsula island that doubles as a casual dining space. Flat-panel, greige cabinetry offers a minimalist, clutter-free aesthetic, complemented by modern matte black dome pendants and a sleek black gooseneck faucet.

  • Living & Workspace: The living areas are designed for effortless flow, easily accommodating mid-century modern credenzas, plush seating, and textured woven rugs. The layout also smartly carves out space for dedicated home offices—featuring long, sun-drenched desks positioned under wide horizontal windows, perfect for remote work.

  • Architectural Stairs: The transition between floors is an event in itself. Open-riser wood steps are flanked by a sleek, frameless glass balustrade and set against a moody, dark grey accent wall, turning the staircase into a central sculptural feature.

  • Bespoke Bathrooms: The bathrooms offer two distinct vibes. The primary full baths are bright and spa-like, featuring floor-to-ceiling vertical textured tiles, clean white vanities, and matte black shower fixtures. In contrast, the upper-level powder rooms inject a dose of playful drama, wrapped in a bold, tropical palm-leaf wallpaper and finished with a modern floating trough sink and an oversized pill-shaped mirror.



By the Numbers: Specs, Costs, and Timelines

Building three units in tandem allowed for a cohesive exterior, but the interiors were tailored to the respective lots and client needs:

  • The Primary Investor's Units: Two expansive suites, each clocking in at approximately 1,500 square feet, featuring 3 bedrooms and 2.5 bathrooms.

  • The Neighbour's Unit: A slightly more compact but equally luxurious suite at roughly 1,100 square feet, offering 2 bedrooms and 2.5 bathrooms.


For homeowners inspired by the Norwood Park project, setting realistic expectations is key. High-end laneway developments of this calibre typically range from $350 to $500 per square foot. Because economies of scale come into play, larger units generally fall toward the lower end of that spectrum. However, site conditions, material choices, and luxury finish upgrades heavily dictate final costs.


The timeline for a project of this scale requires patience but moves efficiently once the groundwork is laid. On average, the collaborative design and building permit process takes about 4 months, followed by a 7.5-month active construction phase.


Site plan with two gray "Primary Residence" blocks and two green "2-Storey Laneway Suite" units. Labeled "Street" and "Laneway".
Image courtesy of: Lanescape

The Future of the Laneway

The Norwood Park Laneway Suites are more than just a smart real estate investment; they are a blueprint for community-driven urban density. By working together, these neighbours didn't just build backyard apartments—they built a striking, cohesive architectural landmark that elevates the entire laneway and sets a new standard for multi-property collaboration.



About Lanescape

Lanescape is a group of planning, design, and development professionals who have long considered laneway and garden suite development to be a potential resource and opportunity for the City of Toronto to thoughtfully improve housing options in existing residential neighbourhoods.


In 2014, Lanescape set out to crowd-source an as-of-right zoning policy that would allow homeowners to easily and affordably build laneway suites. We, like many Torontonians, needed help affording our mortgages, aging in place, and finding family-oriented rental options near parks and schools. After 4 years of tireless effort consulting with communities, planning professionals, city staff, and municipal leaders, our dream became a reality when the City of Toronto approved and implemented as-of-right laneway housing by-laws in the summer of 2018.


Over the course of our advocacy efforts, our expertise in design and construction was integral to our success. With the Changing Lanes policy now in place and the Garden + Suites project well underway, our experience in establishing the by-law now informs our design-build approach, establishing our team as the leading authority on laneway and garden suite development. Lanescape’s fundamental mandate, centred on thoughtful, positive and sustainable development, continues to permeate all facets of our practice throughout our ongoing advocacy efforts, approach to design and methods of construction delivery.

bottom of page